3104 West Waters Ave, Suite 202, Tampa, FL 33614
3104 West Waters Ave, Suite 202, Tampa, FL 33614
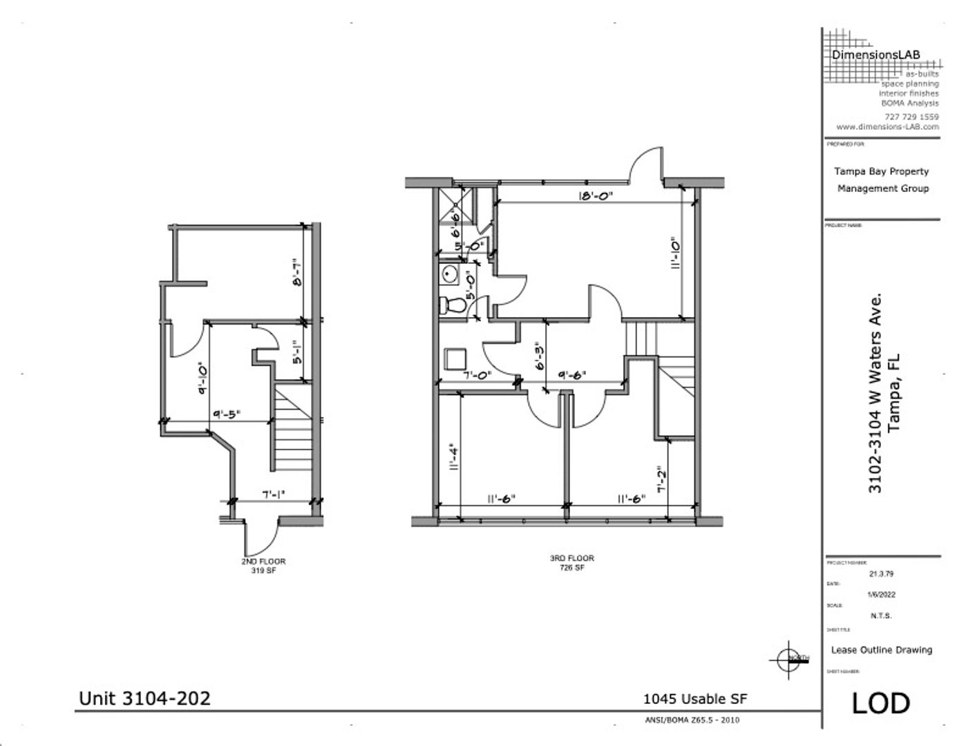
Incredible 2 Story Office with Panaramic Lake and City Views
Great smaller office building with the benefit of being on a lake. This is a great space overlooking Lake Silver. This is a two-story space with an interior stairwell. The second story which is the third story of the building has the bulk of the offices. There is a large patio off the third-floor offices which has an incredible view of Lake Silver. This is a great spot that you will not find anywhere else. The building is maintained well. The unit is currently built with 4 rooms a reception area and 1 bathroom. There are no extra or hidden charges. There is plenty of parking. You only pay your interior electric bill and interior cleaning.
Please go to tbpmg.com to apply or contact us.
Please go to tbpmg.com to apply or contact us.
Contact us:









